Pet Friendly Icon - Pet Friendly

1126 Nelson Bay Road, Fern Bay, New South Wales

Contact Agent

2 3 2

Bayway Village - Sandbanks

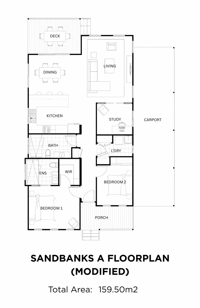
Welcome to the Sandbanks ? a beautifully designed, low-maintenance home offering the perfect blend of comfort, space and practicality. Situated in the friendly Bayway Village at Fern Bay, this thoughtfully planned home is ideal for over 50s looking to downsize without compromise.



Inside, you'll find two spacious bedrooms, two bathrooms, plus a versatile study ? perfect for a home office, hobby room or quiet retreat. The master bedroom boasts a walk-in robe and private ensuite, offering comfort and convenience. A light-filled open-plan living, dining and kitchen area flows effortlessly onto the rear deck ? just right for your morning cuppa or entertaining friends.



Set on a generous lot with a double carport and easy-care outdoor spaces, this home supports a relaxed lifestyle with less upkeep and more freedom.

The Sandbanks is available in both a standard and modified floorplan, giving you the freedom to choose a layout that best suits your lifestyle and needs.




Bayway Village offers an easy, low-maintenance lifestyle in a welcoming community setting - with all the comfort of owning your own home, without the usual costs that can come with traditional property ownership. With land lease living, there's no stamp duty, no council rates, and no exit fees, making it a smart choice for downsizers who want to simplify without compromise. Add in a friendly village atmosphere and pet-friendly living, and it's easy to see why Bayway feels like home from the moment you arrive

(Reference No: BWV-SANDBANKS)

Features

Ceilingfans PetFriendly RearDeck CarpetinBedrooms Study
2 3 2

Details

Address 1126 Nelson Bay Road, Fern Bay, New South Wales
Price Contact Agent
Property ID 105941
Lifestyle Community Bayway Village

Tools

Share This Property

Sales Representative Details

Elly White

Bayway Village - Sandbanks
1126 Nelson Bay Road
Fern Bay New South Wales 2295
Get Directions

More Properties In This Lifestyle Community

{{ ((currentPage * itemsPerPage) - itemsPerPage) + 1 }} - {{ (currentPage * itemsPerPage) - (itemsPerPage - (data.rows.length - 1)) }} {{ ((currentPage * itemsPerPage) - itemsPerPage) }} - {{ (currentPage * itemsPerPage) - (itemsPerPage - (data.rows.length - 1)) }} of {{ totalItems - 1 }} results

Sorry...no manufactured homes could be found.

No listings in that location, showing nearby listings.

No more listings in that location, showing nearby listings.

Just Listed
Auction
Tender
Under Contract
Sold
Leased
Available Soon
{{ item.fields[addressFormatResults] | removeUnknown }} {{ item.fields[addressFormatResults] | removeUnknown }}

Loading...