Pet Friendly Icon - Pet Friendly

1126 Nelson Bay Road, Fern Bay, New South Wales

Contact Agent

2 3 2

Bayway Village - Driftwood

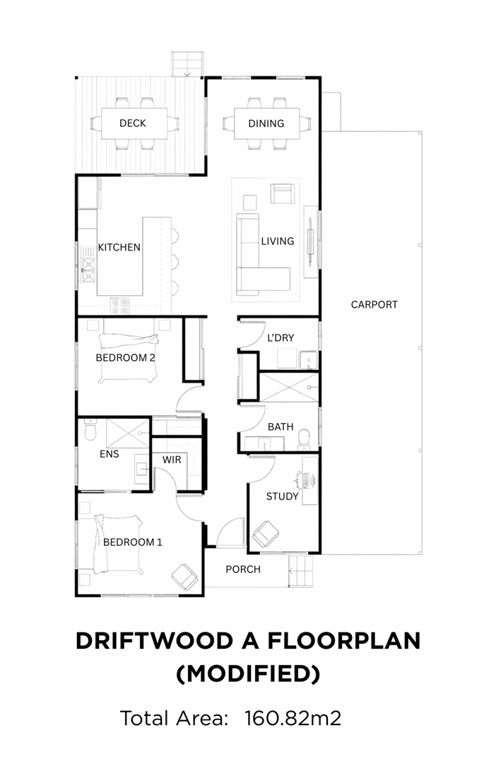
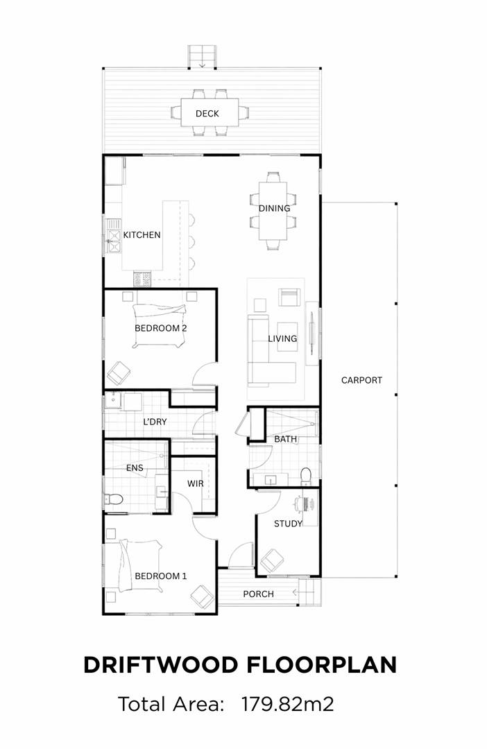
Enjoy easy, modern living in the beautifully designed Driftwood home at Bayway Village. This thoughtfully laid-out home offers two spacious bedrooms, two bathrooms, and a separate study perfect for hobbies, guests or working from home. The open-plan kitchen, dining and lounge area flows seamlessly to a generous covered deck, making entertaining a breeze.




Inside, you'll find a light-filled, single-level layout with quality finishes throughout. The modern kitchen includes an island bench, stone benchtops, and quality appliances, while the master bedroom features a walk-in robe and ensuite for added privacy. With reverse-cycle air conditioning, ceiling fans, and a double carport, comfort and convenience are at your fingertips.




With both standard and modified floor plans available, the Driftwood lets you choose the layout that best suits your lifestyle.




Bayway Village offers an easy, low-maintenance lifestyle in a welcoming community setting - with all the comfort of owning your own home, without the usual costs that can come with traditional property ownership. With land lease living, there's no stamp duty, no council rates, and no exit fees, making it a smart choice for downsizers who want to simplify without compromise. Add in a friendly village atmosphere and pet-friendly living, and it's easy to see why Bayway feels like home from the moment you arrive

(Reference No: BWV-DRIFTWOOD)

Features

Builtinwardrobe Ceilingfans RearDeck CarpetinBedrooms PetFriendly
2 3 2

Details

Address 1126 Nelson Bay Road, Fern Bay, New South Wales
Price Contact Agent
Property ID 105907
Lifestyle Community Bayway Village

Tools

Share This Property

Sales Representative Details

Elly White

Bayway Village - Driftwood
1126 Nelson Bay Road
Fern Bay New South Wales 2295
Get Directions

More Properties In This Lifestyle Community

{{ ((currentPage * itemsPerPage) - itemsPerPage) + 1 }} - {{ (currentPage * itemsPerPage) - (itemsPerPage - (data.rows.length - 1)) }} {{ ((currentPage * itemsPerPage) - itemsPerPage) }} - {{ (currentPage * itemsPerPage) - (itemsPerPage - (data.rows.length - 1)) }} of {{ totalItems - 1 }} results

Sorry...no manufactured homes could be found.

No listings in that location, showing nearby listings.

No more listings in that location, showing nearby listings.

Just Listed
Auction
Tender
Under Contract
Sold
Leased
Available Soon
{{ item.fields[addressFormatResults] | removeUnknown }} {{ item.fields[addressFormatResults] | removeUnknown }}

Loading...