Under Contract

99, 2 Spinnaker Drive, Sandstone Point, QLD

POA

2 2 1

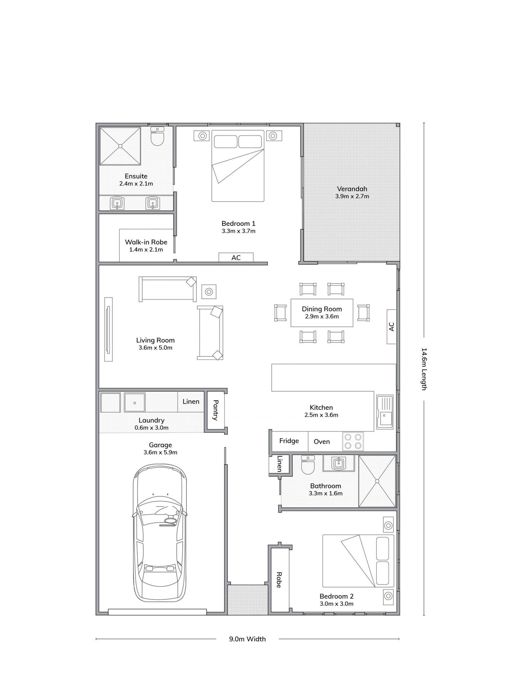
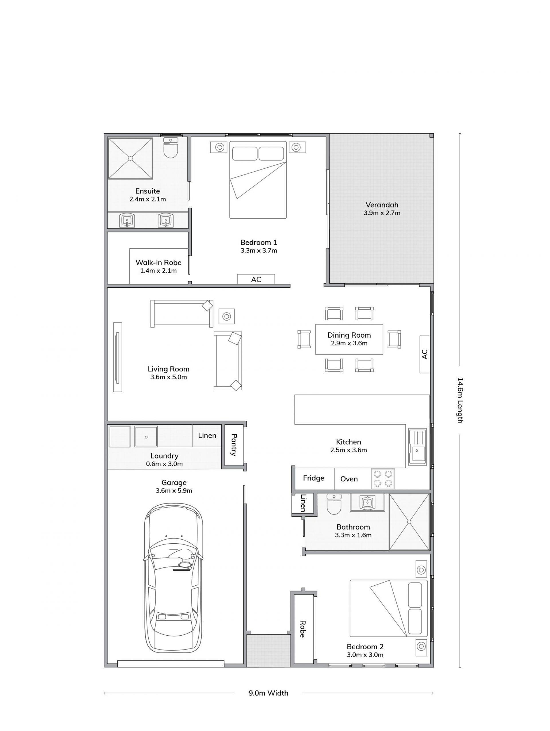
2 bedrooms home

Orianna Community.
This is an architecturally designed 2-bedroom home with stylish contemporary living in mind. Offering open plan living with raked ceilings, separate laundry and a spacious modern kitchen with stainless steel appliances.
Open planned living/dining
Kitchen with breakfast bar
Spacious outdoor entertaining
Single “extra wide” garage
Pet friendly community
2 2 1

Details

Address 99, 2 Spinnaker Drive, Sandstone Point, QLD
Price POA
Property ID 103668
Floor Area 143 m2
Lifestyle Community Orianna Sandstone Point

Tools

Share This Property

Sales Representative Details

Sharon Lye

2 bedrooms home
99, 2 Spinnaker Drive
Sandstone Point QLD 4511
Get Directions

More Properties In This Lifestyle Community

{{ ((currentPage * itemsPerPage) - itemsPerPage) + 1 }} - {{ (currentPage * itemsPerPage) - (itemsPerPage - (data.rows.length - 1)) }} {{ ((currentPage * itemsPerPage) - itemsPerPage) }} - {{ (currentPage * itemsPerPage) - (itemsPerPage - (data.rows.length - 1)) }} of {{ totalItems - 1 }} results

Sorry...no manufactured homes could be found.

No listings in that location, showing nearby listings.

No more listings in that location, showing nearby listings.

Just Listed
Auction
Under Contract
Sold
Leased
Available Soon
{{ item.fields[addressFormatResults] | removeUnknown }} {{ item.fields[addressFormatResults] | removeUnknown }}

Loading...