34H, 716 Harrington Road, Harrington, NSW

FROM $352,000

1 1 1

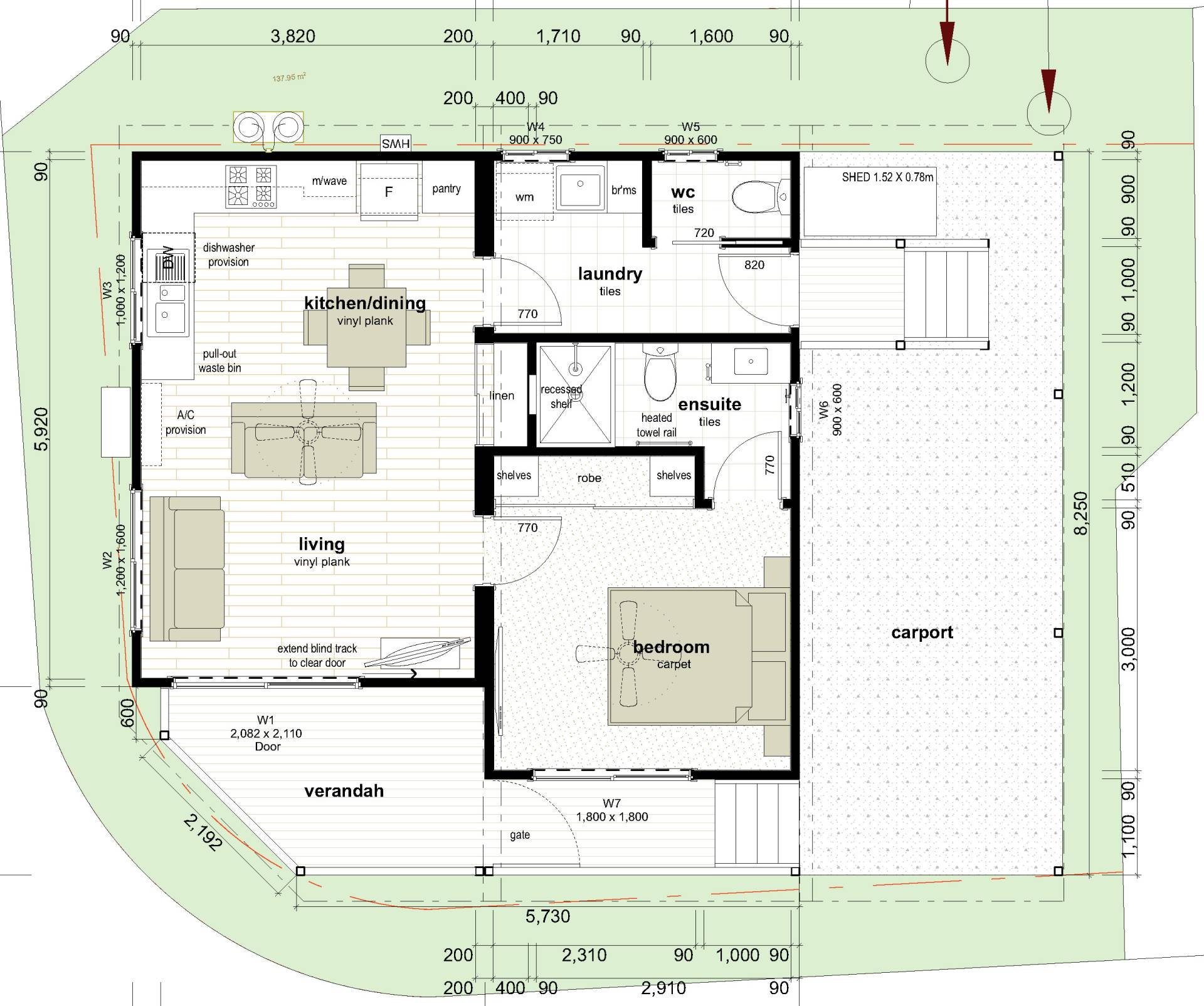
Proposed One Bedroom Home

This proposed new Uniplan show home will sit within the Colonial Leisure Village in Harrington. Nestled among bushland and Crowdy Bay National Park and home to over 63 permanent sites as well as Big4 Colonial Holiday Park. The Colonial Leisure Village is an over 55’s land lease community entered via boom gate, has managers on-site, and is pet friendly. The perfect spot to pull up if you are retired and enjoy travelling in your van and would like the convenience of a secure home base.

The design of the home features one spacious carpeted bedroom, with a built-in robe and ensuite bathroom, which has a large shower, toilet and vanity. A second toilet is located within the laundry. The laundry has storage for brooms. 

The air-conditioned open plan living and dining area feature a modern kitchen with a gas cooktop, electric oven, pantry, and dishwasher. A linen cupboard sits adjacent to the lounge area. All Windows throughout the home come with curtains or blinds installed. 

The home will have two entry points, one at the front, and one at the rear of the carport entering through the laundry. The single carport is attached to the house.

This home is being sold ‘off the plans’. This allows the new home owner to choose the final design and finishes of the home. This is an example plan only and the actual price of the home is dependent on final plans. Construction of the home will begin once the plans are finalised, and initial deposit is paid.

1 1 1

Details

Address 34H, 716 Harrington Road, Harrington, NSW
Price FROM $352,000
Property ID 105263

Tools

Share This Property

Sales Representative Details

Bonnie Callagher

Proposed One Bedroom Home
34H, 716 Harrington Road
Harrington NSW 2427
Get Directions

More Properties In This Lifestyle Community

No Other Listings Exist.