Sold

249/50 Andrews Road, Penfield, SA

SOLD

2 1

Site 249 - new home coming soon

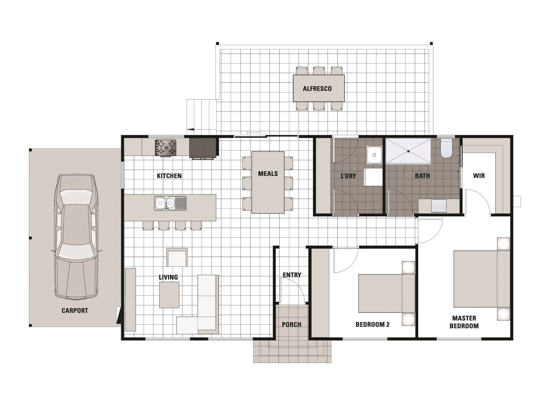
This stunning 2 bedroom home is nearing completion and will be ready to move in to soon. The home is situated within Northern Community Residential village - a tranquil over 50's residential community.

The master bedroom features a walk-in robe, while the second bedroom offers a built-in robe. Enjoy a spacious bathroom and laundry, complete with a built-in linen cupboard for added storage.

Entertain effortlessly from the open-plan living, dining, and kitchen area, seamlessly extending to your covered timber deck. Exterior and interior selections have been carefully chosen by a interior designer.

Northern Community Residential Village is an over 50's independent living village located in Penfield. Join a close-knit community and enjoy a low maintenance lifestyle.

Get in touch today for more information or to arrange a village tour.
2 1

Details

Address 249/50 Andrews Road, Penfield, SA
Price SOLD
Property ID 104716
Lifestyle Community Northern Community Residential Village

Tools

Share This Property

Sales Representative Details

Carl Charnstrom

Site 249 - new home coming soon
249/50 Andrews Road
Penfield SA 5121
Get Directions

More Properties In This Lifestyle Community

{{ ((currentPage * itemsPerPage) - itemsPerPage) + 1 }} - {{ (currentPage * itemsPerPage) - (itemsPerPage - (data.rows.length - 1)) }} {{ ((currentPage * itemsPerPage) - itemsPerPage) }} - {{ (currentPage * itemsPerPage) - (itemsPerPage - (data.rows.length - 1)) }} of {{ totalItems - 1 }} results

Sorry...no manufactured homes could be found.

No listings in that location, showing nearby listings.

No more listings in that location, showing nearby listings.

Just Listed
Auction
Under Contract
Sold
Leased
Available Soon
{{ item.fields[addressFormatResults] | removeUnknown }} {{ item.fields[addressFormatResults] | removeUnknown }}

Loading...