Under Contract

Pet Friendly Icon - Pet Friendly

020, 19 Glenfern Avenue, Thrumster, NSW

POA

2 2 2

Find sanctuary between the country & the sea

Glenfern Community

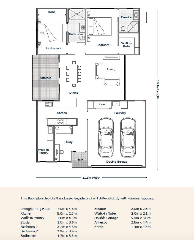
Generous single-level design with a spacious alfresco entertaining area. Master bedroom with walk-in robe and ensuite bathroom. Large kitchen with quality appliances. Open plan light-filled entertaining living and dining spaces. Study or multipurpose room. Guest bedroom with built-in robe and separate bathroom. Internal laundry. Dormer window harnessing sunshine. Fluid indoor/outdoor interaction
Ducted A/C, ceiling fans
Raked ceilings through living
Resort style pool, gym, spa
Pool tables, lawn bowls
Gated Community, bush outlook
2 2 2

Details

Address 020, 19 Glenfern Avenue, Thrumster, NSW
Price POA
Property ID 103548
Floor Area 169 m2
Lifestyle Community Glenfern Thrumster

Tools

Share This Property

Sales Representative Details

Catherine Snook

Find sanctuary between the country & the sea
020, 19 Glenfern Avenue
Thrumster NSW 2444
Get Directions

More Properties In This Lifestyle Community

{{ ((currentPage * itemsPerPage) - itemsPerPage) + 1 }} - {{ (currentPage * itemsPerPage) - (itemsPerPage - (data.rows.length - 1)) }} {{ ((currentPage * itemsPerPage) - itemsPerPage) }} - {{ (currentPage * itemsPerPage) - (itemsPerPage - (data.rows.length - 1)) }} of {{ totalItems - 1 }} results

Sorry...no manufactured homes could be found.

No listings in that location, showing nearby listings.

No more listings in that location, showing nearby listings.

Just Listed
Auction
Under Contract
Sold
Leased
Available Soon
{{ item.fields[addressFormatResults] | removeUnknown }} {{ item.fields[addressFormatResults] | removeUnknown }}

Loading...