252, 598 Summerland Way, Grafton, NSW

$425,000

3 2 1

Discover the best of Over 50s living

Jacaranda Grove Community.
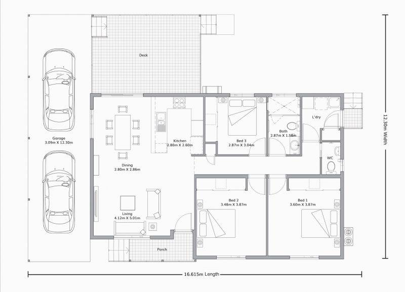
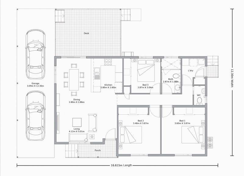
This 3 bedroom home offers open, light and airy living and dining areas and a large kitchen with quality appliances. The outdoor deck is great for entertaining. All three bedrooms have built-in robes and ceiling fans
Undercover carport
Large outdoor deck
Internal laundry
3 bedrooms with built-in robes
Additional WC
3 2 1

Details

Address 252, 598 Summerland Way, Grafton, NSW
Price $425,000
Property ID 103826
Floor Area 132 m2
Lifestyle Community Jacaranda Grove Grafton

Tools

Share This Property

Sales Representative Details

Chris Ryder

Discover the best of Over 50s living
252, 598 Summerland Way
Grafton NSW 2460
Get Directions

More Properties In This Lifestyle Community

{{ ((currentPage * itemsPerPage) - itemsPerPage) + 1 }} - {{ (currentPage * itemsPerPage) - (itemsPerPage - (data.rows.length - 1)) }} {{ ((currentPage * itemsPerPage) - itemsPerPage) }} - {{ (currentPage * itemsPerPage) - (itemsPerPage - (data.rows.length - 1)) }} of {{ totalItems - 1 }} results

Sorry...no manufactured homes could be found.

No listings in that location, showing nearby listings.

No more listings in that location, showing nearby listings.

Just Listed
Auction
Under Contract
Sold
Leased
Available Soon
{{ item.fields[addressFormatResults] | removeUnknown }} {{ item.fields[addressFormatResults] | removeUnknown }}

Loading...