Sold

105 1126 Nelson Bay Road, Fern Bay, New South Wales

SOLD

1 1 1

Site 105 (Brand New) Bayway Village

BRAND NEW 'IN BUILD' HOME.
Are you looking for something nice, shiny and new yet small enough to maintain and clean with minimal effort?
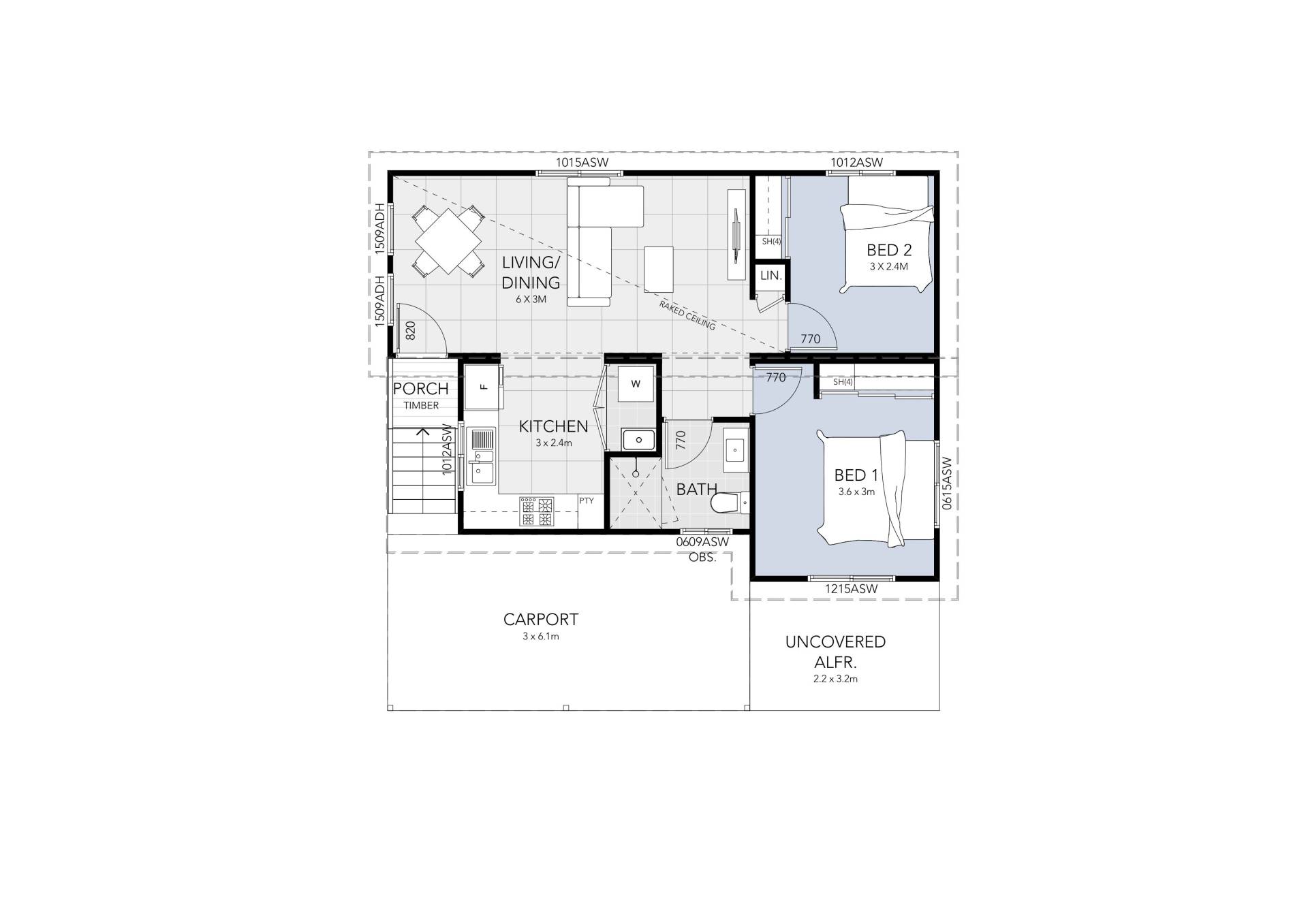
Offering a 1 bedroom plus study, single bathroom home with attached carport and small outdoor uncovered Alfresco area at the rear of the carport.
Comes with a dishwasher, gas cook top/electric oven and stone benchtops.
All of our Brand New homes come with floor and window coverings, manufacturer's warranty on all appliances, ceiling fans, gas hot water system, garden shed, clothesline and even the mailbox.
Purchase this one 'in build' now to secure your piece of paradise here at Bayway Village.
If you are in the market and ready to go, do not miss this fantastic opportunity. Contact Tracy to discuss.

Bayway Village is a lifestyle Village for the over 50's, situated in Fern Bay just outside of Newcastle and at the gateway to Port Stephens. The Village offers a secure living environment, fantastic facilities and a range of social groups and activities. The village is located close to medical facilities, shops and transport. (Reference No: HAMP-00358-770)

Features

Study
1 1 1

Details

Address 105 1126 Nelson Bay Road, Fern Bay, New South Wales
Price SOLD
Property ID 105604

Tools

Share This Property

Sales Representative Details

Tracy Lorimer

Site 105 (Brand New) Bayway Village
105 1126 Nelson Bay Road
Fern Bay New South Wales 2295
Get Directions

More Properties In This Lifestyle Community

No Other Listings Exist.