033, 8 Park Avenue, Yamba, NSW

$690,000

2 2 2

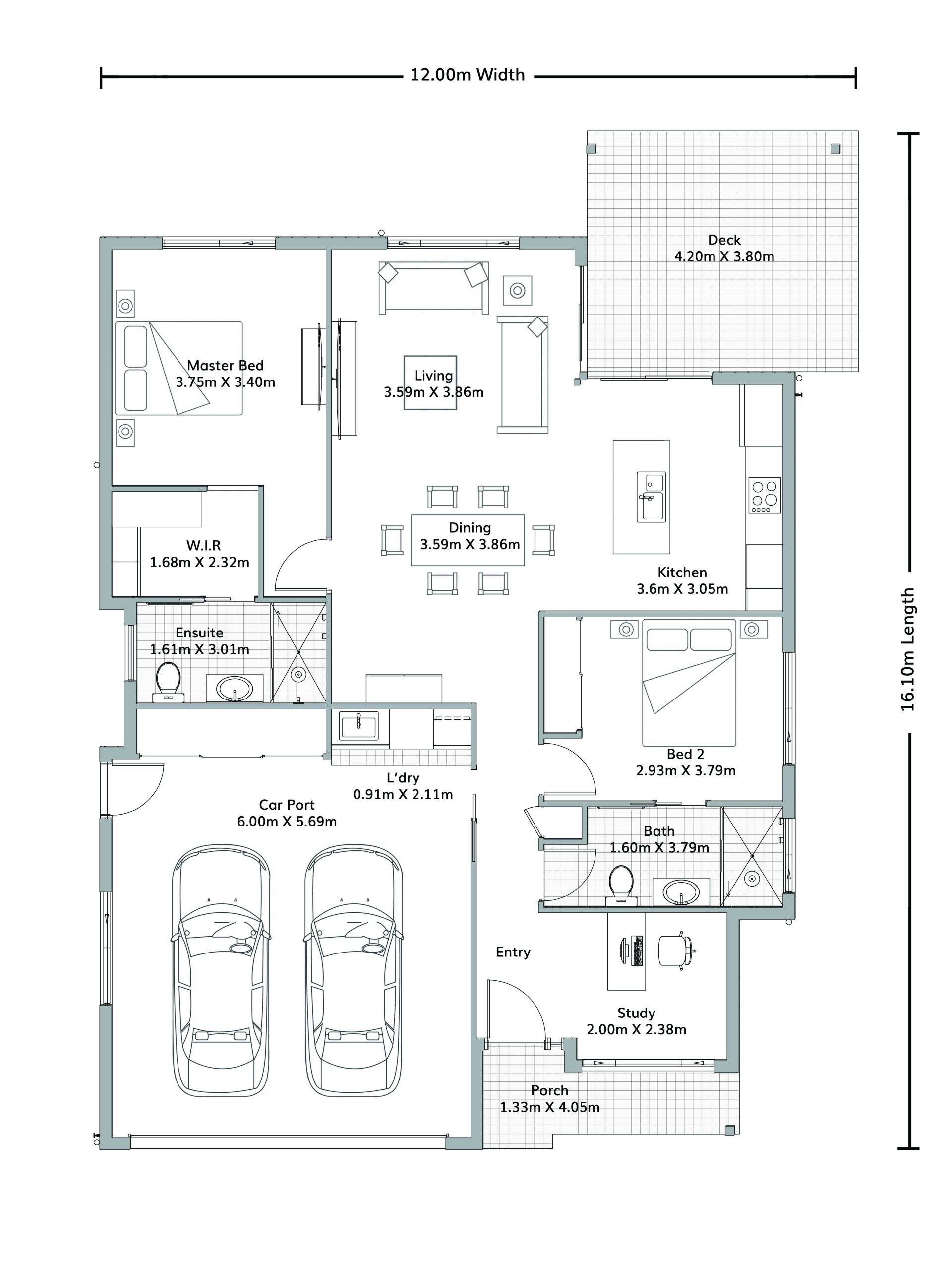
Modern, Stylish and Welcoming

Discover your new home in the modern and stylish Sandpiper design. The chef’s kitchen is the heart of the home overlooking the open plan living and dining areas flowing onto the alfresco. Step into the master suite featuring an oversized walk-in robe and modern bathroom. Enjoy flexible living with a guest bedroom, separate bathroom, multi-purpose room, and double car garage.
Modern kitchen
Open plan living and dining
Master with WIR and ensuite
Guest bedroom and MPR
Double garage

Features

Study
2 2 2

Details

Address 033, 8 Park Avenue, Yamba, NSW
Price $690,000
Property ID 105601
Floor Area 163 m2

Tools

Share This Property

Sales Representative Details

Wendy Cochrane

Modern, Stylish and Welcoming
033, 8 Park Avenue
Yamba NSW 2464
Get Directions

More Properties In This Lifestyle Community

No Other Listings Exist.