Just Listed

026, 36 Golding Street, Yamba, NSW

$560,000

2 2 2

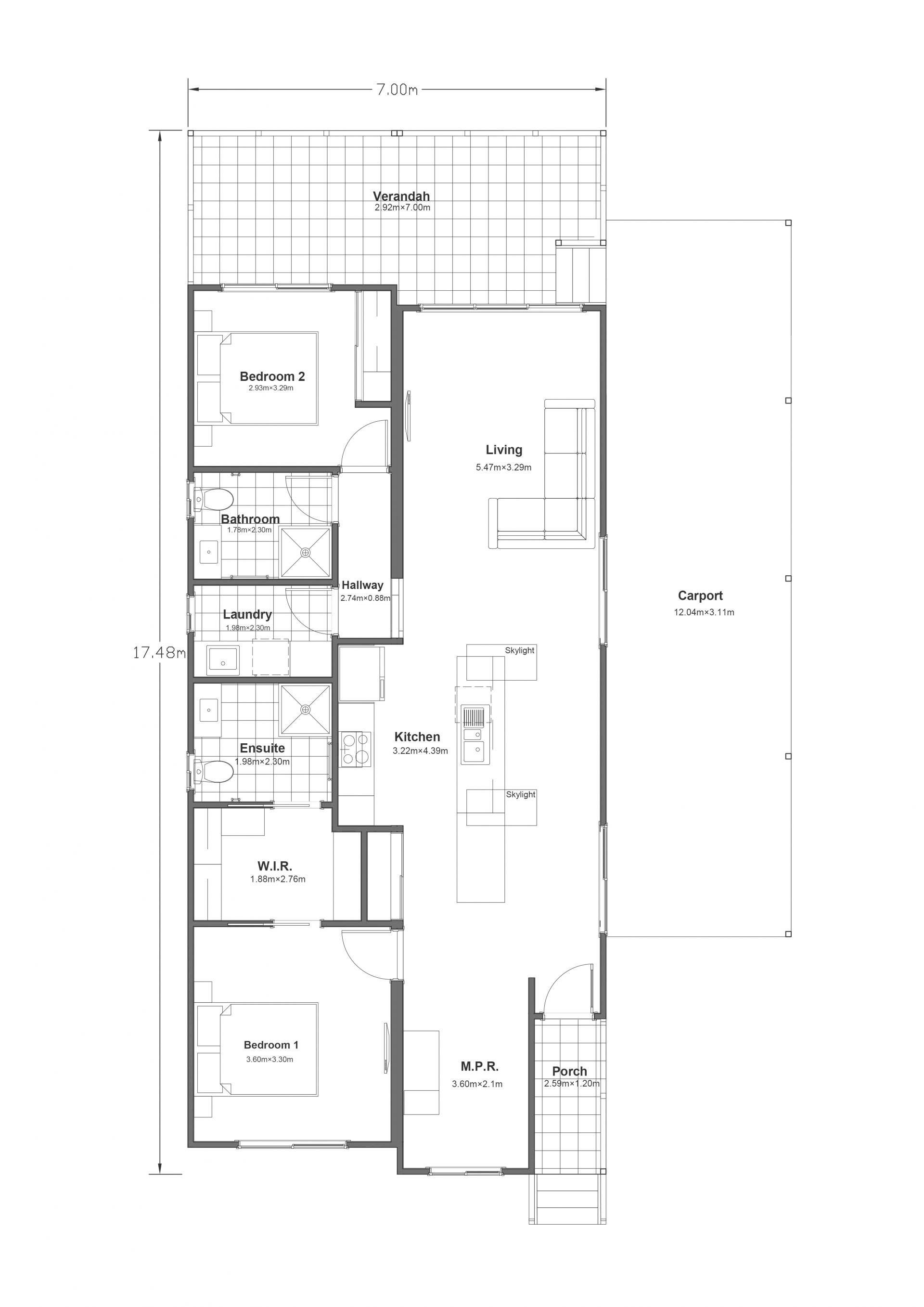
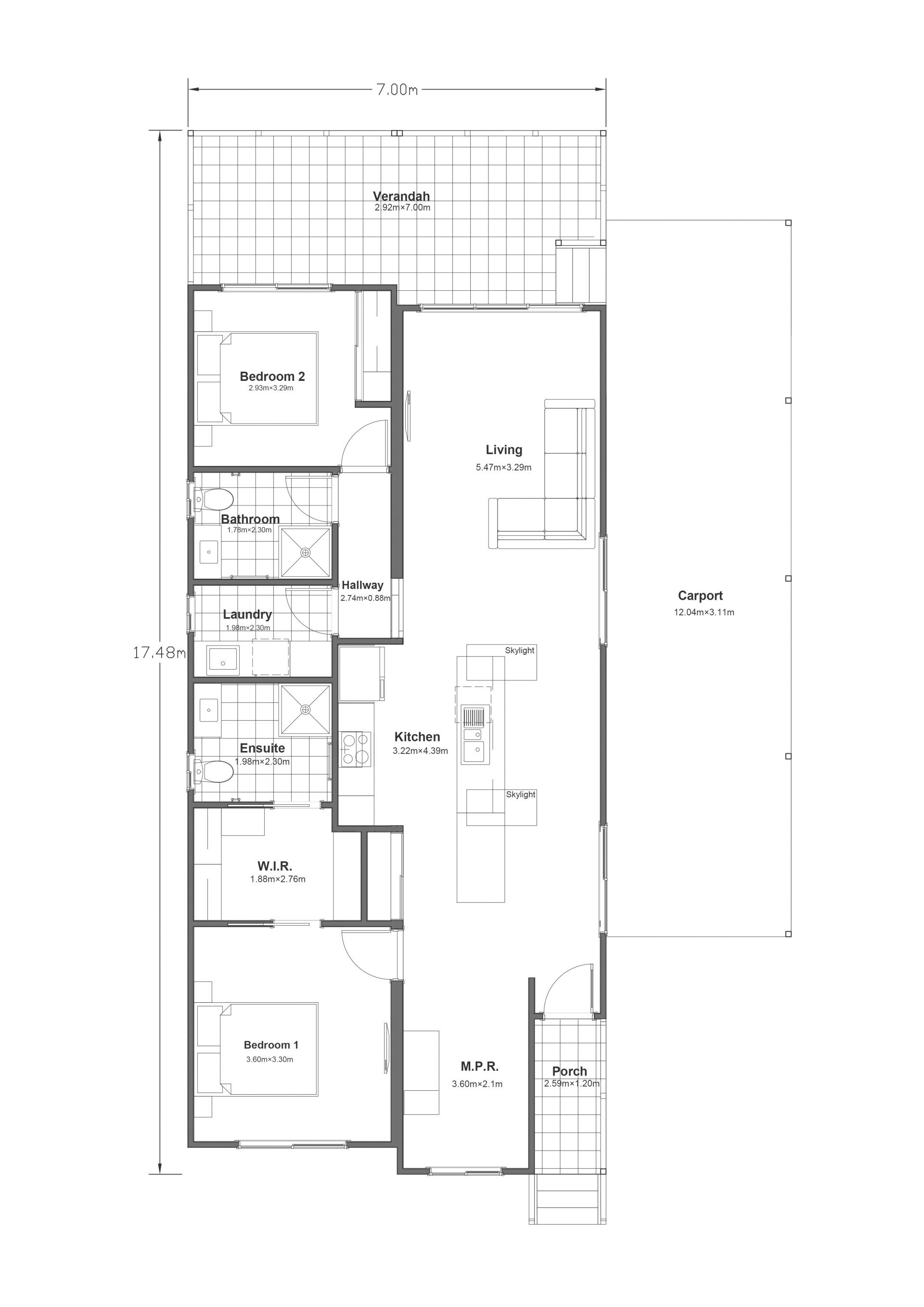
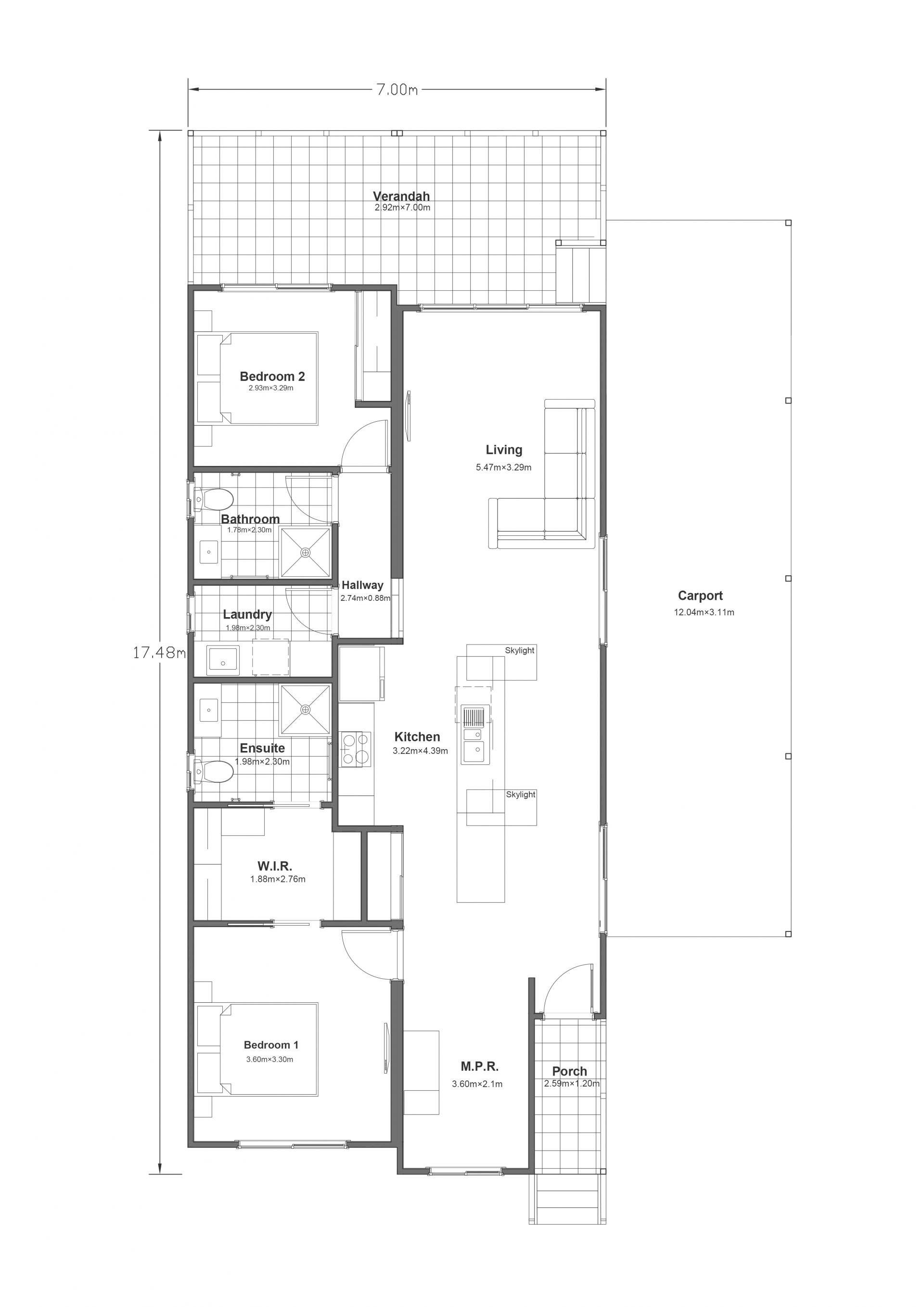
Stylish Living on a Sunlit Corner Lot

This stylish 2 bedroom, 2 bathroom home is set on a beautiful corner lot at Grevillea Waters. Enjoy open-plan living, a versatile multipurpose room, and a light-filled kitchen with dual skylights. The generous master suite includes a walk-in robe and ensuite. Complete with a double carport and quality finishes throughout.
Master suite with walk-in robe
Ceiling fans and air con
Separate laundry
Open plan design
Double undercover carport

Features

Study
2 2 2

Details

Address 026, 36 Golding Street, Yamba, NSW
Price $560,000
Property ID 105861
Floor Area 60 m2

Tools

Share This Property

Sales Representative Details

Melissa Booker

Stylish Living on a Sunlit Corner Lot
026, 36 Golding Street
Yamba NSW 2464
Get Directions

More Properties In This Lifestyle Community

No Other Listings Exist.